Nonet北沢川について
・当社ではNonet北沢川のご購入時の仲介手数料を無料~半額にて承っております。
・売り物件が出ましたら優先的にお知らせしますので、ご連絡先をお知らせください。
・物件の売却査定、ご売却も迅速、確実に対応いたします。お気軽にご連絡ください。
物件について
・2013年2月築、谷沢建設施工、総戸数9戸の3階建デザイナーズマンション
・「世田谷代田駅」徒歩6分、「下北沢駅」徒歩10分
・自然を感じる緑道近く、閑静な住宅街
・自宅兼事務所利用可能
過去の販売価格
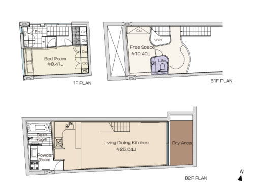
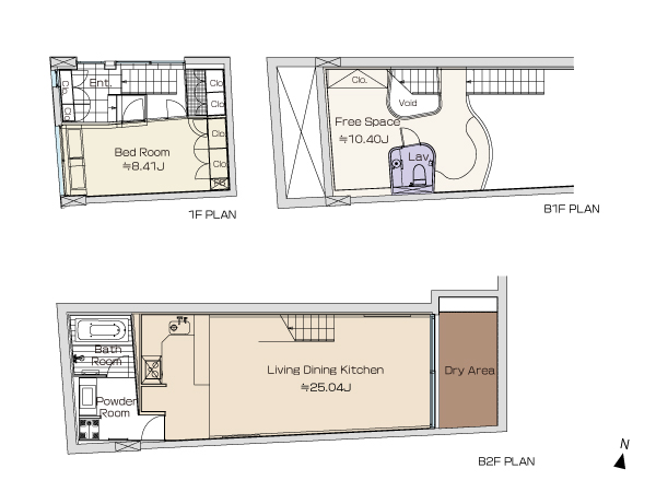
・2020年12月 1LDK+S 97.67㎡ 7,380万円
当社ならではのサービス
・当社ではご購入時の仲介手数料を無料~半額にて承っております。
・物件の見学・内見は平日早朝・夜、土日祝日も予約可能です。
・住宅ローンが不安な場合もお任せください。お客様に最適な金融機関をご提案いたします。
・リフォームの検討・計画や施工の調整業務をご支援いたします。
・オンラインでの物件相談やオンライン内見も対応しております。
Nonet北沢川の周辺環境・地図
以下のGoogleストリートビューと地図で周辺環境をご確認いただけます。

















