中古マンション モア・クレスト神宮前 5799万円 【仲介手数料無料+10万円進呈】 1階 1LDK+WIC 中古 売買

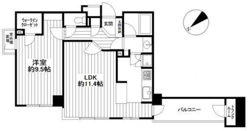
間取り、1LDK+WIC、55.58㎡、明治神宮前駅徒歩5分、1階部分(1階エントランスのため実質2階住戸) LDK11.4帖、南側
LDK北側
LDKからキッチンとバルコニーへ
3口コンロ、食洗器、浄水器つき
洋室9.5帖、WICつき
洋室の備え付けデスク
3面鏡つき独立洗面台
浴室、追い炊き、浴室乾燥機付き
ウォシュレットトイレ
玄関の姿見付き収納
  • 価格
    5,799万円
  • 種別
    中古マンション
  • 間取
    1LDK
  • 坪単価
    391.4万円
  • 共益費・管理費
    13,200円
  • 修繕積立金
    4,120円
  • 所在地
    東京都渋谷区神宮前5丁目  モア・クレスト神宮前
  • 交通
    東京メトロ千代田線 明治神宮前駅 徒歩5分
    JR山手線 渋谷駅 徒歩11分

物件詳細

築年月1998年11月新築/中古中古
面積 55.58m²計測方式壁芯
バルコニー 7.36m²向き北西
建物階数地上5階  地下1階部屋階数 1階
部屋/区画番号 104総戸/区画数 24
建物構造RC
管理形態 全部委託  管理人日勤  管理組合有
間取内容 LDK11.4畳   洋室9.5畳   
住宅保険料修繕積立金 4,120円
駐車場38,000円 空有取引態様仲介
引渡/入居時期 即時現況空家
地目用途地域第一種住居
土地権利定期賃借接道状況
周辺環境 ・キャットストリート:徒歩2分
・ファミリーマート神宮前店:徒歩2分
・ファミリーマート神宮前5丁目店:徒歩3分
・東急ストアフードステーション渋谷キャスト店:徒歩4分
・ラフォーレ原宿:徒歩4分
・渋谷キャスト:徒歩4分
・宮下公園:徒歩6分
・表参道ヒルズ:徒歩7分
・明治神宮:徒歩11分
設備・条件ペット可能 定期借家権 三口コンロ カウンターキッチン 食器洗い乾燥機 給湯 追い焚き 洗髪洗面化粧台 浴室乾燥機 ユニットバス バス・トイレ別 温水洗浄便座 エアコン CATV CSアンテナ BSアンテナ インターネット有 オートロック エレベータ 駐車場有 駐輪場 バルコニー フローリング
物件番号 216
特記事項・ペット可(成長時の体高50cm以内、2匹まで)
・駐輪場:1台目無料、2台目から月額500円
・解体準備積立金:月額5,400円
・定期保証金 5,6652,000円は販売価格に含まれます。保証金は満了時に全額返還(無利息)
 借地権の譲渡、転貸可。ただし地主の承諾要(承諾料不要)

物件について

・【2020年11月リフォーム済】
・1998年11月築、長谷工コーポレーション施工。総戸数24戸の5階建マンション
・「明治神宮前駅」徒歩5分、「渋谷駅」徒歩11分、複数路線利用可能
・おしゃれなアパレルショップや飲食店が多数あるキャットストリート沿い。ホテルライクな内廊下設計。
・オートロック、宅配ボックス、CATV、BS、CS有
・1階はエントランス、駐車場等につき実質2階部分
・ユニットバスには追い炊き機能と浴室乾燥機あり。キッチンは浄水器と食洗器付きのカウンタータイプ
・洋室9.5帖のウォークインクローゼットと、バルコニー奥のトランクルームでたっぷり収納
・洋室には備え付けのデスクがあり、横にはコンセントもあるのでPC置き場にぴったりです。
・リフォーム内容(アフターサービス保証付き)…システムキッチン、ユニットバス、ウォシュレットトイレ、洗面化粧台、給湯器、建具など新規交換、フローリング、フロアタイル、クロス張り替えなど

当社ならではのサービス

・仲介手数料を通常約180万円から無料にお値引きの上、さらに10万円を進呈いたします。
・他社物件も仲介手数料無料~半額となる場合がございますので、お気軽にご連絡ください。
・物件の見学・内見は平日早朝・夜、土日祝日も予約可能です。
・住宅ローン・投資用ローンもお任せください。お客様に最適な金融機関をご提案いたします。
・リフォームの検討・計画・施工にあたり、リフォーム業者との調整業務をご支援いたします。
・オンラインでの物件相談やオンライン内見も対応しております。

モア・クレスト神宮前の周辺環境・地図

以下のGoogleストリートビューと地図で周辺環境をご確認いただけます。

Loading...
※物件掲載内容と現況に相違がある場合は現況を優先と致します。

この物件の資料請求・見学予約(無料)は以下までご連絡ください

青山不動産サービス
営業時間 平日9:00~17:30
定休日 土日祝日
見学・内見は平日早朝・夜、土日祝日の予約可

資料請求見学予約お問い合わせ