中古マンション 藤和シティホームズ西麻布 中古・売買・売却査定 【仲介手数料を大幅値引き】

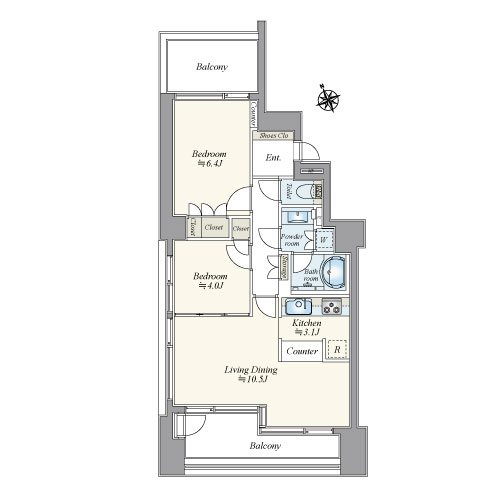
間取り、2LDK、57.07㎡、2面バルコニー 外観、5階部分、乃木坂駅徒歩10分
リビングダイニング10.5帖
南西向きバルコニーに面したLD
LDから4.0帖の寝室へのスライドドア
通風陽当たり良好
キッチン3.1帖
収納豊富
3口コンロ付き
カウンター
明るい洗面台
浴室、追い炊き、浴室乾燥機能付き
洗浄機能付きのトイレ
玄関とすっきりしたデザインのシューズクローゼット
玄関から廊下へ
玄関からLDKへの廊下
椅子などを置いてテラス席も楽しめるバルコニー
南西向きで陽当たり良好
5階からの気持ち良い眺望
屋根付きエントランス
オートロック、TVモニターホン、防犯カメラで安心
郵便受けと宅配ボックス
駐車場、駐輪場あり
  • 価格
  • 種別
    中古マンション
  • 間取
    2LDK
  • 坪単価
    405.5万円
  • 共益費・管理費
    19,200円
  • 修繕積立金
    18,000円
  • 所在地
    東京都港区西麻布2丁目  藤和シティホームズ西麻布
  • 交通
    東京メトロ千代田線 乃木坂駅 徒歩10分
    東京メトロ日比谷線 六本木駅 徒歩12分

物件詳細

築年月1997年7月新築/中古中古
面積 57.07m²計測方式壁芯
バルコニー 16.48m²向き南西
建物階数地上8階 部屋階数 5階
建物構造RC
管理形態 全部委託 巡回 有
間取内容 LD10.5畳   K3.1畳   洋室4畳   洋室6.4畳   
住宅保険料修繕積立金 18,000円
駐車場35,000円 空有取引態様仲介
引渡/入居時期 相談現況居住中
地目用途地域近隣商業
土地権利所有権接道状況
周辺環境 六本木ヒルズ:徒歩6分
スーパー成城石井 西麻布店:徒歩7分
小学校港区立笄小学校:徒歩6分
中学校港区立高陵中学校:徒歩6分
病院日本赤十字社医療センター:徒歩13分
公園青山公園:徒歩6分
公園広尾北公園:徒歩11分
設備・条件三口コンロ カウンターキッチン 追い焚き 洗髪洗面化粧台 浴室乾燥機 バス・トイレ別 温水洗浄便座 室内洗濯機置き場 CATV オートロック TVドアホン 防犯カメラ 都市ガス 公営水道 排水下水 エレベータ 宅配ボックス 駐車場有 駐輪場 バルコニー フローリング
・町内会費:200円/月・駐輪場:500円/月
物件番号 199

藤和シティホームズ西麻布の売買について

・当社では藤和シティホームズ西麻布のご購入時の仲介手数料を無料~半額にて承っております。
・売り物件が出ましたら優先的にお知らせしますので、ご連絡先をお知らせください。
・物件の売却査定、ご売却も迅速、確実に対応いたします。お気軽にご連絡ください。

物件について

・1997年7月築、藤和ハウジング施工、総戸数15戸の8階建マンション
・「乃木坂駅」徒歩10分、「六本木駅」徒歩12分、「表参道駅」徒歩14分、人気の港区西麻布エリア
・24時間ゴミ出し可能、宅配ボックス有

過去の販売価格

・2020年11月 2LDK 57.07㎡ 7,000万円

当社ならではのサービス

・当社ではご購入時の仲介手数料を無料~半額にて承っております。
・物件の見学・内見は平日早朝・夜、土日祝日も予約可能です。
・住宅ローンが不安な場合もお任せください。お客様に最適な金融機関をご提案いたします。
・リフォームの検討・計画や施工の調整業務をご支援いたします。
・オンラインでの物件相談やオンライン内見も対応しております。

藤和シティホームズ西麻布の周辺環境・地図

以下のGoogleストリートビューと地図で周辺環境をご確認いただけます。

Loading...
※物件掲載内容と現況に相違がある場合は現況を優先と致します。

この物件の資料請求・見学予約(無料)は以下までご連絡ください

青山不動産サービス
営業時間 平日9:00~17:30
定休日 土日祝日
見学・内見は平日早朝・夜、土日祝日の予約可

資料請求見学予約お問い合わせ