藤和シティホームズ南麻布の売買について
・当社では藤和シティホームズ南麻布のご購入時の仲介手数料を無料~半額にて承っております。
・売り物件が出ましたら優先的にお知らせしますので、ご連絡先をお知らせください。
・物件の売却査定、ご売却も迅速、確実に対応いたします。お気軽にご連絡ください。
物件について
・1999年3月築、三井住友建設株式会社施工、総戸数26戸14階建マンション
・「麻布十番駅」徒歩3分、「広尾駅」徒歩14分、人気の港区南麻布エリア!
・麻布十番商店街まで徒歩3分
過去の販売価格
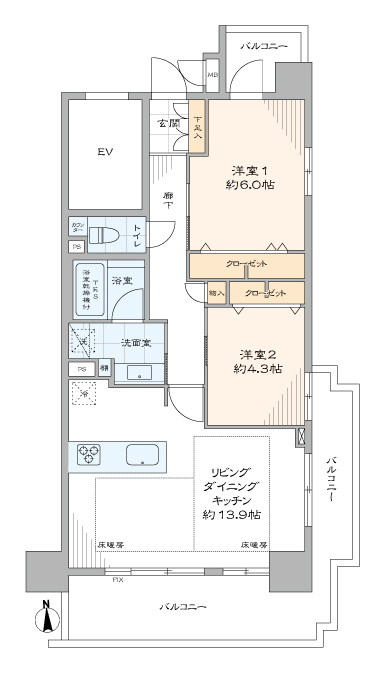
・2020年8月 2LDK 60.39m² 8,980万円
当社ならではのサービス
・当社ではご購入時の仲介手数料を無料~半額にて承っております。
・物件の見学・内見は平日早朝・夜、土日祝日も予約可能です。
・住宅ローンが不安な場合もお任せください。お客様に最適な金融機関をご提案いたします。
・リフォームの検討・計画や施工の調整業務をご支援いたします。
・オンラインでの物件相談やオンライン内見も対応しております。
藤和シティホームズ南麻布の周辺環境・地図
以下のGoogleストリートビューと地図で周辺環境をご確認いただけます。












