赤坂ロイヤルプラザの売買について
・当社では赤坂ロイヤルプラザのご購入時の仲介手数料を無料~半額にて承っております。
・売り物件が出ましたら優先的にお知らせしますので、ご連絡先をお知らせください。
・物件の売却査定、ご売却も迅速、確実に対応いたします。お気軽にご連絡ください。
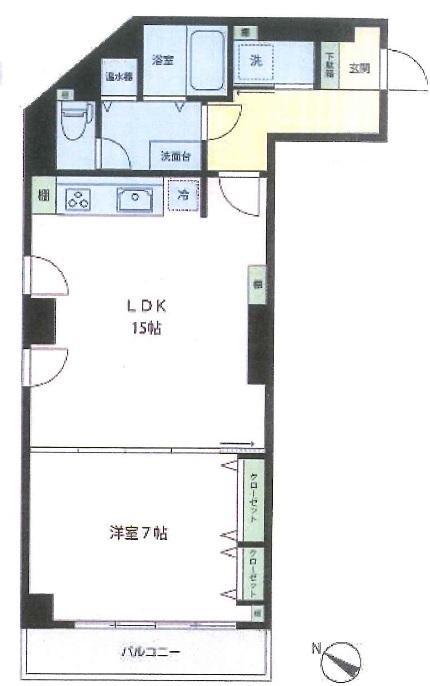
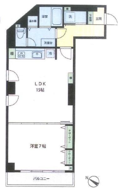
物件について
・1982年8月築、鹿島建設施工。総戸数56戸の7階建マンション
・「赤坂駅」徒歩2分、「赤坂見附駅」徒歩5分、「溜池山王駅」徒歩6分、人気の港区赤坂エリア
・外観タイル貼り
・赤坂サカスまで徒歩5分の好立地
・安心のオートロック
当社ならではのサービス
・当社ではご購入時の仲介手数料を無料~半額にて承っております。
・他社の物件も仲介手数料をお値引きできる場合がございますので、お気軽にご連絡ください。
・物件の見学・内見は平日早朝・夜、土日祝日も予約可能です。
・住宅ローン・投資用ローンもお任せください。お客様に最適な金融機関をご提案いたします。
・リフォームの検討・計画・施工にあたり、リフォーム業者との調整業務をご支援いたします。
・オンラインでの物件相談やオンライン内見も対応しております。
赤坂ロイヤルプラザの周辺環境・地図
以下のGoogleストリートビューと地図で周辺環境をご確認いただけます。








